Greg Cummings San Diego Real Estate Agent - 858-206-9500
MLS: OC25254174 $802,000
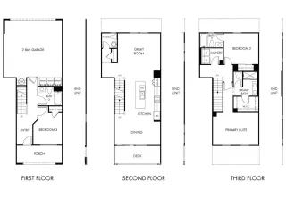
3 Bedrooms with 4 Baths1804 SALTBUSH DRIVE
SAN MARCOS CA 92069MLS: OC25254174
Status: ACTIVE
List Price: $802,000
Price per SQFT: $450
Square Footage: 17813 Bedrooms
4 Baths
Year Built: 2025
Zip Code: 92069
Listing Remarks
Brand new, energy-efficient home available NOW! 4.99% 30-year fixed rate on select homes at Cielo with preferred lender. The first-floor bed with full bath provides comfort for visiting guests or a home office. The open-concept living space is ideal for entertaining, featuring a chef-inspired kitchen with large island, dedicated dining space, and a powder bath for guests. Cielo, in San Marcos, CA, is the place for your carefree SoCal life. Offering stylish townhomes with spacious, open-concept floorplans, chef-inspired kitchens, primary suites with walk-in closets and covered decks. Homeowners will benefit from Cielo's turnkey, move-in ready features such as included Whirlpool appliances and whole home blinds. Each of our homes is built with innovative, energy-efficient features designed to help you enjoy more savings, better health, real comfort and peace of mind.
Address: 1804 SALTBUSH DRIVE SAN MARCOS CA 92069
Listing Agent: SHAWN BLACK of MERITAGE HOMES OF CALIFORNIA 949-444-3467
Condo Mania Agent
Greg Cummings
Compass Real Estate
Team Lead CA DRE# 01464245
Request More Information
Listing Details
STATUS: Active SPECIAL LISTING CONDITIONS: Standard BEDROOMS: 3 BATHROOMS FULL: 3 BATHROOMS HALF: 1 LIVING AREA SQ FT: 1781 BUILDING AREA TOTAL: 1781 YEAR BUILT: 2025 HOA/MGMT CO: Cielo Homeowner's Associa HOA FEES FREQUENCY: Monthly HOA FEES: $303 HOA AMENITIES: Picnic Area, Playground APPLIANCES INCLUDED: Electric Range CONSTRUCTION: Stucco FIREPLACE: N/K FLOORING: Linoleum/Vinyl COOLING: Central Forced Air, Zoned Area(s), Energy Star, Dual INTERIOR FEATURES: Balcony, Recessed Lighting LAUNDRY FEATURES: Electric # GARAGE SPACES: 2 PARKING FEATURES: Direct Garage Access, Garage, Garage Door Opener PROPERTY TYPE: Residential PROPERTY SUB TYPE: Townhome ROOF: Concrete, Tile/Clay POOL FEATURES: N/K SPA FEATURES: N/K STORIES TOTAL: 3 VIEW: Mountains/Hills LISTING AGENT: SHAWN BLACK LISTING OFFICE: MERITAGE HOMES OF CALIFORNIA LISTING CONTACT: 949-444-3467
Estimated Monthly Payments
List Price: $802,000 20% Down Payment: $160,400 Loan Amount: $641,600 Loan Type: 30 Year Fixed Interest Rate: 6.5 % Monthly Payment: $4,055 Estimate does not include taxes, fees, insurance.
Request More Information
Property Location: 1804 SALTBUSH DRIVE SAN MARCOS CA 92069
This Listing
Active Listings Nearby
Condo Mania Agent
Greg Cummings
Compass Real Estate
Team Lead CA DRE# 01464245
The Fair Housing Act prohibits discrimination in housing based on color, race, religion, national origin, sex, familial status, or disability.
“This information is deemed reliable but not guaranteed. You should rely on this information only to decide whether or not to further investigate a particular property. BEFORE MAKING ANY OTHER DECISION, YOU SHOULD PERSONALLY INVESTIGATE THE FACTS (e.g. square footage and lot size) with the assistance of an appropriate professional. You may use this information only to identify properties you may be interested in investigating further. All uses except for personal, non- commercial use in accordance with the foregoing purpose are prohibited. Redistribution or copying of this information, any photographs or video tours is strictly prohibited. This information is derived from the Internet Data Exchange (IDX) service provided by San Diego MLS. Displayed property listings may be held by a brokerage firm other than the broker and/or agent responsible for this display. The information and any photographs and video tours and the compilation from which they are derived is protected by copyright. Compilation © 2026 San Diego MLS.”
Last Updated: 2026-02-18
San Diego Condo Mania






