Compass Logo

Greg Cummings San Diego Real Estate Agent - 858-206-9500

Community: SEAGROVE ... Listing 2 of 2
First -- Next -- Previous -- Last

MLS: NDP2510299     $1,999,000     2 Beds /4 Baths

MLS #:NDP2510299
Status:ACTIVE
List Price:$1,999,000
Price SQFT:$922
City: CARLSBAD
Beds:2
Baths:4
SqFt:2167
Year:2016
Zip:92008

 

Listing Remarks

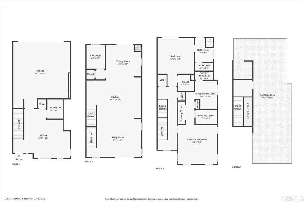
Live the Luxury Coastal Lifestyle in the Heart of Carlsbad Village! Welcome to your dream retreat on State Street, where modern sophistication meets laid-back coastal charm. With over 2,100 square feet of beautifully designed interior space and an expansive, private rooftop deck, this swanky coastal condo places you within steps of the lagoon, beach, boutique shops, and the vibrant dining scenes of both downtown Carlsbad and South Oceanside. Natural light floods every level of this three-story end unit, highlighting custom finishes, rich wood floors, high ceilings, and an effortless flow throughout. Enter through the private courtyard or your oversized two-car garage into a versatile first-floor flex space -perfect for a living area, guest suite, or home office. The second floor showcases the heart of the home with a stunning chefs kitchen featuring a large island with leathered granite countertops, custom cabinetry, designer fixtures, and top-of-the-line stainless steel appliances. The open-concept dining and living areas are ideal for entertaining or relaxing, complemented by two balconies- one for morning coffee or evening BBQs and another charming French balcony right off the dining room. Upstairs, the third-floor hosts both bedrooms and laundry. The guest suite includes an ensuite bath, a walk-in closet, and its own French balcony. The primary suite is a serene sanctuary with west-facing windows framed by eucalyptus trees, a spacious walk-in closet plus two additional closets, and a spa-inspired bath with dual vanities and a spacious shower. Saving the best for the las

Address: 2517 STATE STREET CARLSBAD CA 92008

Listing Agent: MARIA ROLLER of FIRST TEAM REAL ESTATE 760-415-2217

Listing Photos


Community: SEAGROVE ... Listing 2 of 2
First -- Next -- Previous -- Last

Logo for Fair Housing ActThe Fair Housing Act prohibits discrimination in housing based on color, race, religion, national origin, sex, familial status, or disability.

“This information is deemed reliable but not guaranteed. You should rely on this information only to decide whether or not to further investigate a particular property. BEFORE MAKING ANY OTHER DECISION, YOU SHOULD PERSONALLY INVESTIGATE THE FACTS (e.g. square footage and lot size) with the assistance of an appropriate professional. You may use this information only to identify properties you may be interested in investigating further. All uses except for personal, non- commercial use in accordance with the foregoing purpose are prohibited. Redistribution or copying of this information, any photographs or video tours is strictly prohibited. This information is derived from the Internet Data Exchange (IDX) service provided by San Diego MLS. Displayed property listings may be held by a brokerage firm other than the broker and/or agent responsible for this display. The information and any photographs and video tours and the compilation from which they are derived is protected by copyright. Compilation © 2026 San Diego MLS.”

Last Updated: 2026-03-19