Compass Logo

Greg Cummings San Diego Real Estate Agent - 858-206-9500

Community: BALBOA TOWERS ... Listing 1 of 2
First -- Next -- Previous -- Last

MLS: 260003520     $749,000     3 Beds /2 Baths

MLS #:260003520
Status:ACTIVE
List Price:$749,000
Price SQFT:$619
City: SAN DIEGO
Beds:3
Baths:2
SqFt:1210
Year:1973
Zip:92111

 

Listing Remarks

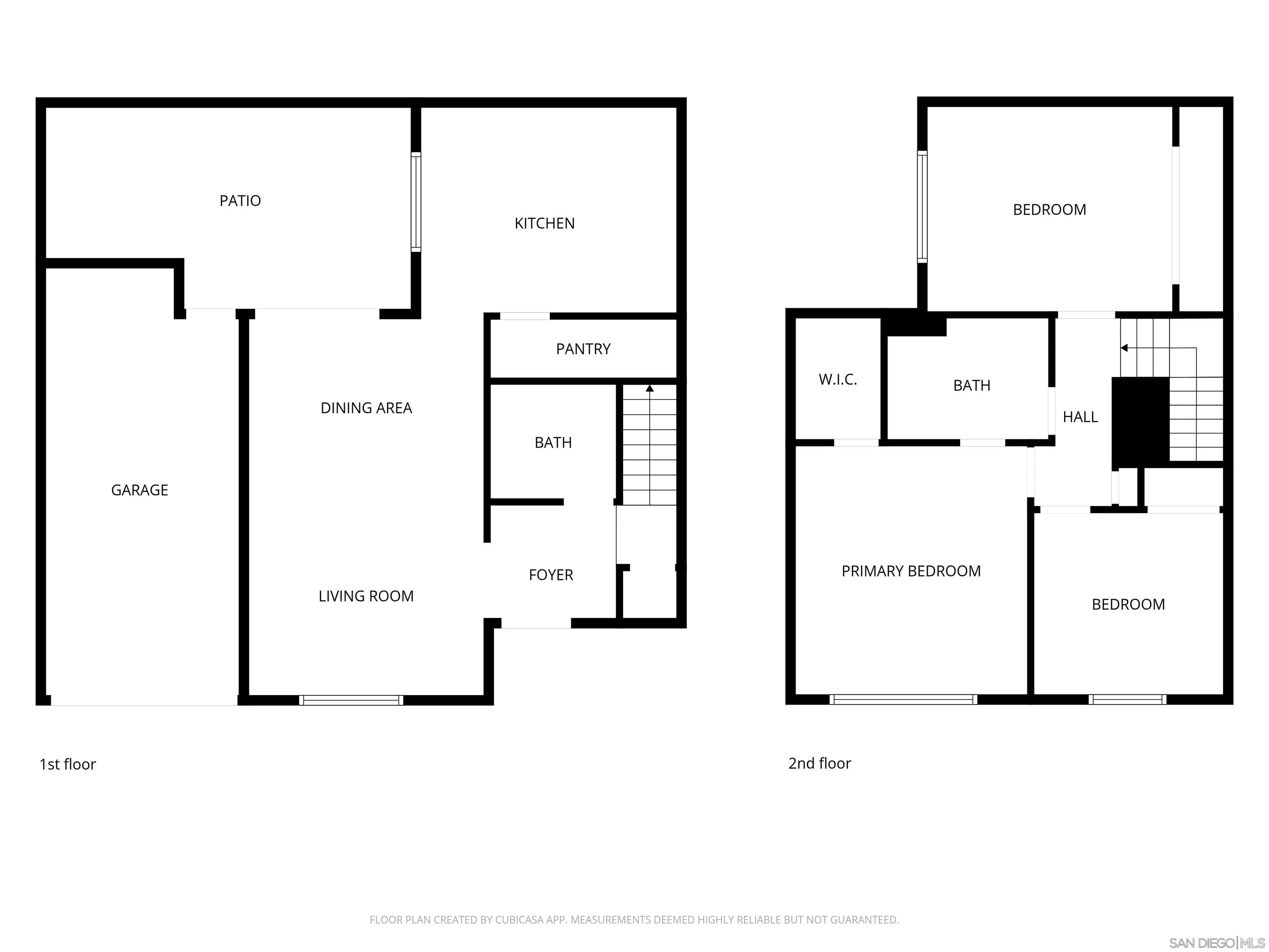
Beautifully remodeled townhome featuring a brand new kitchen with plenty of cabinet space and walk in pantry. Remodeled bathrooms with modern finishes. Living room opens up to private patio with new stamped concrete flooring. Primary bedroom with vaulted ceiling and walk in closet. One car garage with new epoxy flooring. New heater. Dual pane windows. Newer water heater. Quit setting in complex, yet only 1 block to shopping and restaurants.

Address: 5524 CAMINITO JOSE SAN DIEGO CA 92111

Listing Agent: SONJA STOLZENBERG of KELLER WILLIAMS LA JOLLA 619-889-3274

Listing Photos


Community: BALBOA TOWERS ... Listing 1 of 2
First -- Next -- Previous -- Last

Logo for Fair Housing ActThe Fair Housing Act prohibits discrimination in housing based on color, race, religion, national origin, sex, familial status, or disability.

“This information is deemed reliable but not guaranteed. You should rely on this information only to decide whether or not to further investigate a particular property. BEFORE MAKING ANY OTHER DECISION, YOU SHOULD PERSONALLY INVESTIGATE THE FACTS (e.g. square footage and lot size) with the assistance of an appropriate professional. You may use this information only to identify properties you may be interested in investigating further. All uses except for personal, non- commercial use in accordance with the foregoing purpose are prohibited. Redistribution or copying of this information, any photographs or video tours is strictly prohibited. This information is derived from the Internet Data Exchange (IDX) service provided by San Diego MLS. Displayed property listings may be held by a brokerage firm other than the broker and/or agent responsible for this display. The information and any photographs and video tours and the compilation from which they are derived is protected by copyright. Compilation © 2026 San Diego MLS.”

Last Updated: 2026-02-13